北欧宜家 欧美风情 现代时尚 新中式 现代原木风

项目地址:广东·珠海·泰盈玖悦湾

作品名称:朝与

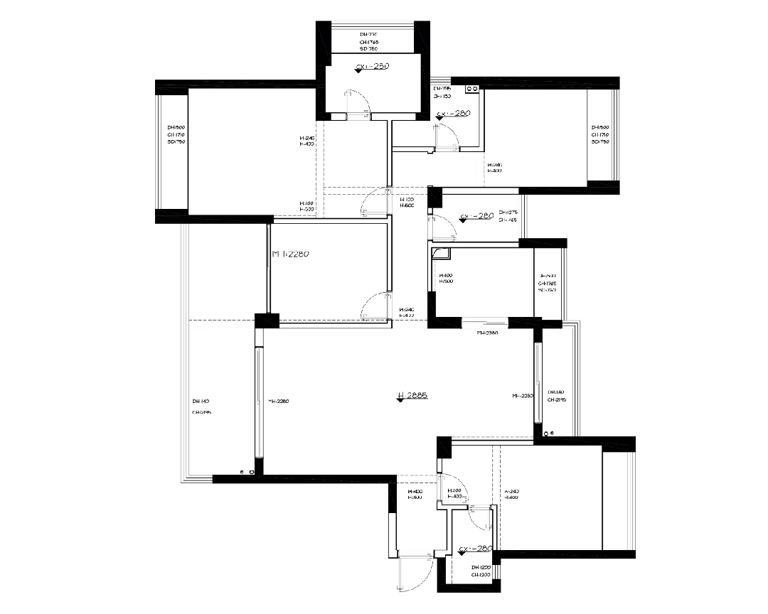
项目面积:180㎡

户型结构:三室两厅平层

设计机构:亦安设计

施工单位:白菜适家

设 计 师 : 白菜适家

合作模式:全案设计


点击立即预约


图片


开门的瞬间

家的温馨气息扑面而来

心切换到放松的状态

回归静雅生活




图片





图片


玄关处打造了一组柜子,采用多层次的收纳方式,让每寸空间都得到充分利用。简约的色调与整体风格相统一,隐形线性灯的设计,让玄关整洁明亮、温馨舒适。


图片


BAICAI-HOME






图片
图片


从进门的玄关,到厨房餐厅,到客厅阳台,几个位置打通后空间的整体性和通透性非常好。


图片


设计师充分利用大横厅的优势,沙发和电视中间的跨度较大,试试沙发不靠墙,一个书桌和一整排的书柜,妥妥的打造成了一个书房!


图片
图片


客厅以沙发+书桌为家居活动中心,环形动线串联起各区域,打造互动型空间,增强一家三代人之间的社交。


图片


电视背景墙用石膏板搭配乳胶漆,将阳台连接起来,底层的格栅板丰富了材质层次,搭配灯带,现代而简洁。



图片




图片


磁吸轨道灯,从厨房延伸到了客厅。中间用射灯作为辅助光源,搭配造型简洁的窗帘,让厨房格外清新整洁。


图片
图片


黑桃木色餐桌与整个空间搭配得相得益彰,让家里充满迷人的复古调。


图片


厨房配色设计注重舒适和现代感,低调且含蓄U型台面布局展现厨房的收纳能力和流畅的操作动线。把空间中的每一寸都应用到了极致。


图片
图片


“取、洗、切、炒”随心切换,

减少不必要的移动,让烹饪更加轻松高效。




图片




图片


整体风格淡雅素净,低调的质感,优雅的基调。床头不同饱和度的橘色背景墙挂画,一种浪漫诗意与空间设计共感,家的“栖息感”满满溢出。


图片
图片


床头一角,通过不同层次的暖色背景调进行分墙设计,增加空间的层次感,搭配书本、吊灯的置物边几,彰显出满满的文艺气息。


图片


主卧整体以暖色作为主色调,造型简约的床品和衣柜让空间显得简洁干净,多光源的设计则为空间氛围感增色不少。


图片


为主卧设计了一个精致的梳妆台,浅灰的色调与整个空间协调统一,组合型化妆桌增加收纳。


图片
图片


主卫干湿分离,做双台盆设计+加长镜柜,底部悬空加设收纳,满足多人生活使用,淋浴房增加金属壁龛,暗藏灯带凸显质感。








图片
图片


儿童房整体以奶油色为主,一张霸气的保时捷跑车床契合小男孩对个性的追求,温馨又富有童趣。


图片


一门到顶的L形大衣柜造型别致,既可以作为储藏区又能当展陈区使用。



图片

客厅改造前后对比

图片

·改造前

图片

·改造后


餐厅改造前后对比

图片

·改造前

图片

·改造后






INFO

- 项目名称 -

朝与


- 全案设计 -

亦安设计

- 施工单位 -

白菜适家


- 户型结构 -

平层 3房2卫


- 建筑面积 -

180㎡


- 项目地址 -

中国·珠海·泰盈玖悦湾
-




图片


❶套内原有四间卧室,每间相对局促不合理、我们将空间重新排布,调整至三间各带独立卫生间合乎尺寸的卧房。

❷入户玄关做了高柜收纳满足功能需求时并采用了悬浮镂空设计给予空间通透性。

❸厨区利用原有飘窗提高后做了U形布置,洗切烹饪一气呵成。
❹主卧采用悬浮床设计附加木饰面背景墙,材质上的统一,空间的和谐营造静谧感。

❺儿童房L形衣柜兼得开放式书桌设计,书籍、摆件、学习小物,放在桌面也不显拥挤。




图片

为什么选择白菜适家?装修前后对服务的评价如何?

金山同事介绍的,装修团队比较专业,也比较容易沟通。


装修之前希望家里有一些什么样的功能/风格?现在呈现出的样子符合你的想象吗?

希望新家是温暖的、令人感到放松和踏实的,现在的样子基本符合想象了。


新家最满意的地方是哪里?

喜欢全屋的木地板,我看到孩子们甚至大人来我们家玩经常席地而坐,很放松。很多人家里喜欢浅色的地板,我恰好喜欢偏深的,感觉深色的木地板令人很踏实。


用三个词形容一下现在的家~

温暖、踏实、放松


装修过程中最大的感触是什么?

装修好累(笑)。

装修前要充分做好功课,自己先有一个清晰明确的目标,真正开始装修了才不会太纠结。