北欧宜家 欧美风情 现代时尚 新中式 现代原木风

项目地址:中国珠海心海州

作品名称:景明

项目面积:110㎡

户型结构:平层 三房两卫

设计施工:白菜适家

合作模式:全案设计


点击立即预约

每个家诞生的地方,都有种美的存在,我们与其邂逅,被其触动,心生涟漪,关于家的故事便随之而诞生。


于生活美满的屋主一家三口而言,实用与美感兼备,是他们对新家的最大诉求。原“条头糕”户型空间分配失衡,动线凌乱,通过功能区置换和重新细分,三居室格局焕然一新。




图片

BAICAI HOME DESIGN

白菜适家

-

广东 ·心海州

July2023


白菜适家

,赞26






每个家诞生的地方,都有种美的存在,我们与其邂逅,被其触动,心生涟漪,关于家的故事便随之而诞生。


于生活美满的屋主一家三口而言,实用与美感兼备,是他们对新家的最大诉求。原“条头糕”户型空间分配失衡,动线凌乱,通过功能区置换和重新细分,三居室格局焕然一新。


Every place where a home is born, there is a kind of beauty, we encounter it, are touched by it, the heart ripples, and the story of home is born.





图片


整屋包裹以清新奶油色,
定义出居所的松弛与优雅,
大量运用圆润拱型,
将直线条的家,修饰得温婉含蓄,
为三口之家在钢筋水泥的都市,
打造了一处理想的“避风港”。




图片

图片

图片

图片
▫️隔而不断,光影流转,归家开敞明媚



入户开门见厅,L型双面柜设至半墙高度,解决门厅、客厅收纳与装饰需求。空间似隔非隔,似断非断,彼此独立又互动紧密,尽显小家开阔尺度。


洞洞板挂物,阴影镜整理仪表,棋盘格地毯增加门厅温馨感,归家秩序井然,舒适宜人。





图片


图片

图片

图片
▫️奶油色为基调,融入撞色对比,一展灵动!


移除客厅与阳台间隔门,扩大采光面,充沛自然光透过梦幻帘,倾泻至室内,柔和光影,为空间轻镀梦幻滤镜。


一字型主沙发,线条极简利落,放弃茶几,宽大地毯整铺,一家三口席地而坐,亲子阅读、吉他弹唱,各得其所,汪星人也行卧随意,行动自如。



图片

图片

图片


图片


电视背景墙悬浮挑空,力求视觉的轻盈,空间的趣味性也得以增强。橄榄绿抽屉电视柜,与奶油色为主题的客厅,形成撞色对比,展现客厅鲜活的一面,令人眼前一亮。



图片

图片

图片

图片


阳台的弧形垭口,与客厅拱门遥相呼应,空间层层纵深,视线也自然地引到阳台。无遮挡落地窗让垭口一秒化身取景框,四季更迭、星辰交替,尽收眼底。


客厅重视角落氛围的营造,慵懒毛毛虫沙发、厚实软垫,不经意间搭建一方休闲小天地。



图片

图片

图片

图片


葱茏绿植,抽象摆件画和光影绚丽落日灯,建构出充满生活气息的家居场景,让人也由衷感受到屋主的高级审美品味。





图片


图片

图片

图片
▫️餐厨动重组,吧台餐桌吃出情调!



餐厅挪至原储物间处,让渡出宽敞客厅活动区,厨房开门方向也相应调整,保留电视背景墙的完整性,生活动线重新梳理,空间的尺度更趋协调。




图片

图片

图片

图片



弧形吧台餐桌,收拢起尖锐角度,餐厅氛围适合从容就餐,闲暇时的交谈、小酌,同时它也具备隐藏功能,充当临时的办公桌、写作业的书桌……空间延伸无限可能。


吧台下设储物抽屉,兼顾餐边柜的收纳职能,轨道插座的存在,专为电器预留,以细节充实空间的舒适度。





图片
图片



百叶帘将光线分出层次,呈现出明与暗的视觉冲击。以窗外的自然风物为线索,遵循简明轻快的风格和逻辑,营造出灵动的空间起伏。





图片


图片

图片
▫️拱门为引,U型布局笑纳柴米油盐等琐碎!


厨房以拱门引入,实现餐厨一体格局,圆润亲和的弧线,消融空间的呆板无趣,丰富原有格局层次。U型动线布局,遵循洗切煮拿的秩序,一气呵成展开,下厨得心应手。白色岩板台面与鱼肚白大理石砖,褪去烟火之地的燥热,让厨房归于清爽清新。






图片


图片

图片

图片
▫️璀璨星光、皎洁月光和温柔灯光,皆宜入梦!


白色岩板台面与鱼肚白大理石砖,褪去烟火之地的燥热,让厨房归于清爽清新。统一奶油调和简洁平顶,弱化了不规则主卧的异形消极感,空间重拾治愈包容力。


床头背景墙顶部,预留单边反光灯槽,见光不见灯,适应基础照明又兼洗墙调动氛围之能,营造沉浸式床头氛围。



图片
图片



主卧筑木质地台,与沙发靠背床形成高低错落的视觉效果,地台底植入灯带,光影交错,虚实相生,犹如悬于空中,极致浪漫生动。




图片

图片

图片

图片



主卧畸角落物尽其用,床尾设挑空矮柜展示收纳,推门而入的视线,平稳落足于此,颇具观赏性。


八角形阳台化身梳妆、办公区,拓展空间新功能,提升居住体验。黑色百叶帘,灵活调节室内光影,通过室内明暗的细微变化,适应不同场景需求。





图片


图片

图片

图片
▫️玩乐一体的妙趣儿童房,给孩子一个彩色童年!



通过上床下柜的设计手法,实现儿童房休息、玩耍、学习和收纳功能的四合一,空间利用率最大化。精准留白为孩子保留动态空间,适应多龄段成长所需,色彩搭配明亮轻松,契合孩童心理特点。




图片

图片



床底至多边形阳台,预留充足活动空间,灯带和地毯布置,便于小朋友涂鸦、阅读,释放天性,同时也是亲子互动的首选之所,父母可充分给予孩子成长中必要的陪伴。




图片

图片

床底至多边形阳台,预留充足活动空间,灯带和地毯布置,便于小朋友涂鸦、阅读,释放天性,同时也是亲子互动的首选之所,父母可充分给予孩子成长中必要的陪伴。





图片


图片
▫️收纳max,通透大气,是衣帽间的标签!


玻璃窗拼接半墙,将闲置卧室,一分为二,狭长空间规划为独立衣帽间,并配套梳妆台,彰显了屋主的高品质生活理念。


与衣帽一窗之隔的多功能室,潜能无限,在客房、储物间和休闲区之间,切换自如。




图片
▫️跳色的处理手法,让卫浴空间多了一丝俏皮感!



奶油砖墙地一体铺贴,主卫贯彻纯粹的设计语言,台盆区台面延长至马桶上方,补充置物空间,跳色处理的爱马仕橙浴室柜,一扫纯色空间的沉闷,惊艳却不张扬。


下沉式的淋浴房,优化了臃肿的挡水条,并启用单面的无边框玻璃做隔断,同时搭配墙排花洒和壁龛储物,真正做到极简且使用无负担。




图片


次卫洗手台外置,实现彻底干湿分离,淋浴间和马桶区也相对宽敞明亮,有效提高了使用效率。


次卫沿用单面玻璃隔断、墙排花洒设计,承袭主卫的独立舒适。






INFO

- 项目名称 -
景明

- 全案设计 -
白菜适家


- 户型结构 -
平层 3房2卫


- 建筑面积 -
110㎡

- 项目地址 -
中国·珠海·心海州

-

图片
图片
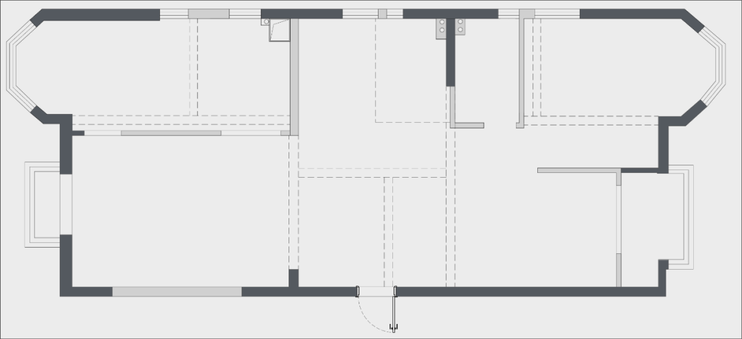
左右滑动查看户型图
· 设L型面矮柜,覆盖玄关基础收纳,又形成视觉缓冲,规避开门见厅的尴尬。
· 餐厨一体开放,客厅电视背景墙完整和谐,家务动线重新优化,空间分配合理。
· 吧台餐桌融合储物抽屉,支持三口之家正常用餐之余,又弥补了餐厅缺失的收纳空间。
· 次卫的洗手台拎出,干湿分离,湿区获得更宽敞使用空间,餐前也可就近洗手。
· 闲置卧室一分为二,一侧做独立衣帽间,另一侧为可储物、留宿客人的多功能房。









图片




图片
图片


餐厅改造前 vs 改造后



图片
图片

客厅改造前 vs 改造后


图片
图片
图片
图片

客厅改造前 vs 改造后








图片



图片新家最满意的地方是哪里呢?


图片最满意的是客厅和餐厅,和厨房形成了非常流畅的动线,平时使用起来非常方便,而且家里动、静区得到了划分,平时早起做饭、或者待客也不会吵到宝宝。




图片用三个词形容一下现在这个家?

图片温暖 明亮 舒心




图片你觉得白菜适家是一个怎样的团队?

图片专业且有温度的团队,团队与客户沟通顺畅,能够很好的将我们的设想落地,工程很专业。